×
   
Startseite > Verwaltung > Konferenz- und Verwaltungsgebäude Schwenk Bernburg
Start
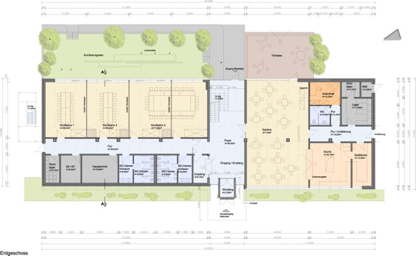
6.3.2-GR-EG
6.3.3-Grundriss-1
6.3.4-AN
6.3.5-SN
6.3.6-Foto-Fassade-1
6.3.7-Foto-Fassade-2
6.3.8-Foto-Fassade-3
6.3.9-Foto-Konfi
6.3.10-Foto-Bad

Neubau Konferenz- und Verwaltungsgebäude Schwenk, Bernburg

Planung / Realisierung 2010 - 2011

Die Schwenk Dämmtechnik GmbH & Co.KG errichtete 2011 den Neubau eines Konferenz- und Verwaltungsgebäudes auf dem Werksgelände des Standortes Bernburg. Neben den klassischen Verwaltungseinheiten im Obergeschoss verfügt der Neubau im Erdgeschoss über einen großzügigen Konferenz- und Tagungsbereich sowie eine Kantine mit zugeordneten Außenbereichen. Aufbauend auf dem hohen Qualitätsanspruch der Schwenk Dämmstoffe wurde der Neubau als innovatives Passivhaus/ Energieüberschusshaus mit Erdwärme, Wärmerückgewinnung, kontrollierter Lüftungsanlage und Photovoltaikanlage auf dem Dach errichtet.

BGF ca. 1.250 m²

Generalplanung: Objektplanung, Tragwerksplanung, Haustechnik, Brandschutz, Wärmeschutz, Freianlagen, Objektüberwachung

Bauvolumen ca. 2,6 Mio. €