×
   
Startseite > Pflege/ betreutes Wohnen > Ärztehaus/ Stationäres Hospiz „St. Joseph Stift“ Dresden
Start
7.3.2-LP
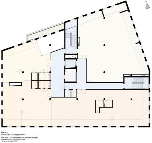
7.3.3-GR-OG1
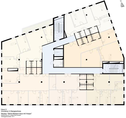
7.3.4-GR-OG2
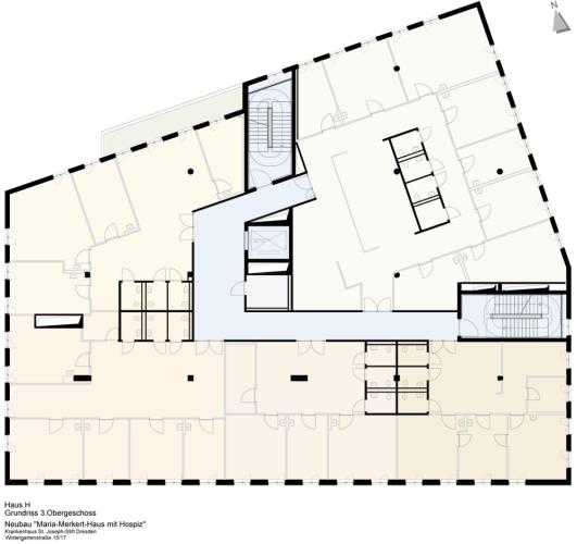
7.3.5-GR-OG3
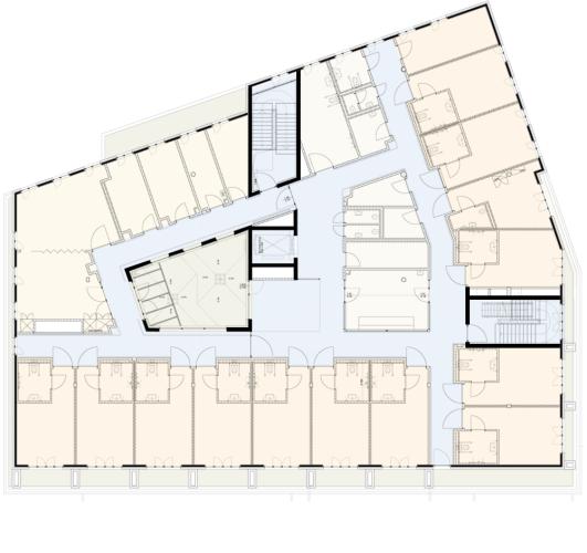
7.3.6-GR-OG4
7.3.7-AN-West
7.3.8-AN-Sued
7.3.9-AN-Ost-Wintergartenstrasse
7.3.10-AN-Nord-Canalettostrasse
7.3.11-DT-Fassadenschnitt
7.3.12 Hospiz-Baustellenfoto

Neubau Maria-Merkert-Haus mit Hospiz in Dresden

Planung / Realisierung 2018 -2020

Das Krankenhaus St. Joseph-Stift entwickelt in unmittelbarer Nachbarschaft zum eigenen Krankenhausgelände an der Ecke Canaletto-Straße/ Wintergartenstraße das fünfgeschossige Maria-Merkert-Haus mit Tiefgarage. Neben einer Bäckerei mit Café sowie einem Sanitätshaus im Erdgeschoss nimmt der Neubau bis zum 3.Obergeschoss bis zu sechs Arztpraxen pro Etage auf. Das gesamte 4.Obergeschoss ist dem Hospiz des St. Joseph-Stifts vorbehalten. Hier stehen 16 Einzelzimmer mit jeweils separaten Bewohner-Bädern und vorgelagerten Dachterrassen zur Verfügung. Die notwendigen Arbeits- und Pflegebereiche werden durch Aufenthaltsbereiche für die Bewohner und deren Angehörige sowie einen sonnigen Lichthof ergänzt. Die horizontal gebänderten Lochfassaden mit dem partiellen Besenstrichputz im Fensterbereich und die abgerundeten Gebäudeecken verleihen dem Baukörper ein ruhiges und individuelles Erscheinungsbild.

BGF ca. 8.310 m²

Objektplanung LP 05

LP 01-04 WTR Architekten Dresden

Bauvolumen ca. 14 Mio. €