×
   
Startseite > Flughafengebäude > Terminalgebäude Brass Nigeria
Start
9.3.2-GR
9.3.3-AN
9.3.4-SN

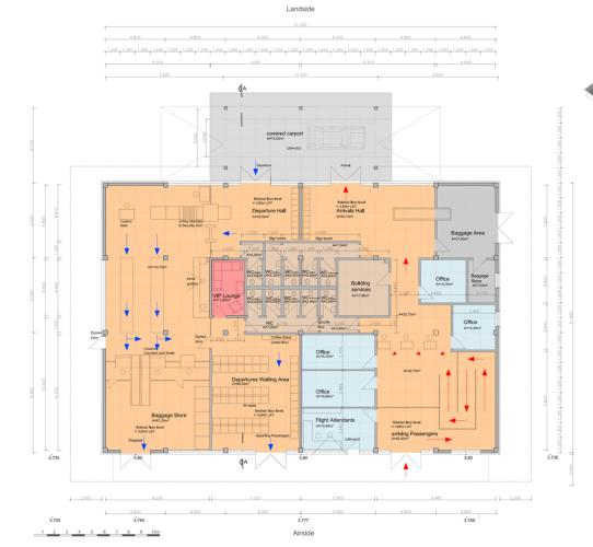
Neubau Terminalgebäude Brass, Nigeria

Planung / Realisierung 2009 - 2010

Unter dem zur Luftseite ansteigendem Pultdach ordnet sich beidseitig der inneren Mittelachse der Abflug- und Ankunftsbereich an. Neben den zum Vorfeld orientierten Wartebereichen verfügt der Terminal über die Funktionsbereiche Gepäckkontrolle, Ein- und Ausreise, Check-in, Gepäckausgabe, VIP -Lounge und Verwaltung. Die großzügig überdachte Vorfahrt auf der Landseite und die transparenten Fassaden unter dem auskragenden schattenspendenden Dach prägen das leichte Erscheinungsbild der Gesamtanlage.

BGF ca. 1.200 m²

Objektplanung, Tragwerksplanung, Haustechnik LP 01-05

Bauvolumen: 1,3 Mio. €