×
   
Startseite > Flughafengebäude > Hubschrauberhangar Erfurt
Start
9.2.2-LP
9.2.3-GR
9.2.4-AN1
9.2.5-AN2
9.2.6-SN
9.2.7-Foto

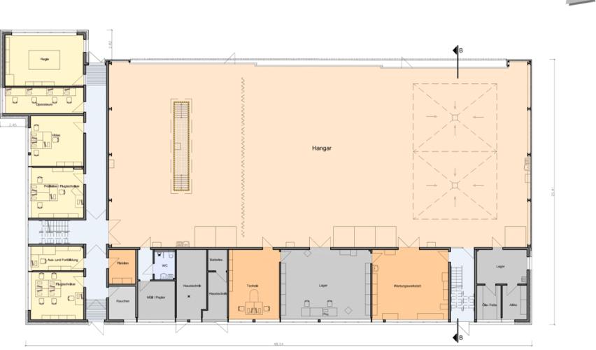
Neubau Hubschrauberhangar mit Funktionsgebäude am Flughafen Erfurt

Planung / Realisierung 2009 - 2010

Die Flughafen Erfurt GmbH errichtete den Neubau eines Hubschrauberhangars für die Unterbringung der Polizeihubschrauberstaffel des Freistaates Thüringen.
Der Neubau bietet Platz für die Unterbringung und Wartung von zwei Hubschraubern, Abstellplatz für Tank- und Spezialfahrzeuge, Waschplatz und Wartungsgrube sowie Büro-, Technik- und Sozialräume für die Bediensteten der Polizeihubschrauberstaffel. Die vorhandenen Vorfeldflächen wurden funktional an den Neubau angebunden.

BGF ca. 1.790 m²

Objektplanung, Tragwerksplanung, Haustechnik, Tiefbau- und Verkehrsanlagen, Objektüberwachung, SiGeKo

Bauvolumen: ca. 3,4 Mio. €